Business Community

General Dynamics adds nuclear sub parts to Gig Harbor’s maritime economy

Posted on November 25th, 2025 By:

Commercial fishing and yachting have long buoyed Gig Harbor’s economy. But a boat-builder that just arrived in town will add a very different kind of vessel to this maritime heritage.

General Dynamics Electric Boat, a subsidiary of the global aerospace and defense contractor General Dynamics Corporation, is opening a light industrial facility in Gig Harbor. The facility is part of its program to build the Virginia-class attack submarine, a large, stealthy and (for enemies) deadly nuclear-powered vessel that is becoming the mainstay of the U.S. Navy’s undersea fleet.

Don’t expect to see a Virginia-class sub trying to wedge its 461-foot-long, 34-foot-beam, 10,200-ton bulk through the harbor’s narrow entrance. Electric Boat’s new Gig Harbor workshop sits well away from the waterfront.

The company has leased 36,735 square feet of warehouse and industrial space at the Latitude 47 Commerce Center on Bujacich Road, east of Highway 16.

The new General Dynamics Electric Boat space in the Latitude 47 complex in Gig Harbor. Photo by Vince Dice

Work on ‘components’ of subs

And it will only work on pieces of the submarine. The Gig Harbor facility will “manufacture and refurbish components in support of Electric Boat’s Virginia Class Submarine new construction program,” said Myra Lee, director of communications and public affairs for the Groton, Connecticut-based company.

“This effort will involve the full-time employment of 15 to 20 personnel spanning the full spectrum of skills required of submarine construction,” she said. “We will fill those positions with existing personnel,” including from General Dynamics Electric Boat’s current workforce in Bremerton. “But we will then be hiring to backfill the positions that are vacated. There will be new jobs in the area.”

The expansion in Gig Harbor comes as the U.S. Navy ramps up Virginia-class submarine construction, pumping billions of dollars into the program.

The Virginia class became the most numerous submarine in the fleet earlier this year, as the Navy decommissioned the USS Helena, an older Los Angeles-class attack sub, and launched the Virginia-class USS Iowa, according to the U.S. military newspaper Stars and Stripes.

The Virginia-class submarine USS New Jersey pulls into Naval Weapons Station Earle in New Jersey on Sept. 6, 2024. U.S. Navy Photo By Bill Addison/released

Earlier this year, the Navy awarded contracts worth $18.5 billion for two new Virginia-class  submarines to General Dynamics Electric Boat and to Huntington Ingalls Industries Newport News Shipbuilding. The two companies collaborate on building the vessels.

A deal now in progress between the Navy and the two shipbuilders could result in contracts, possibly finalized by the end of this year, for 15 new nuclear-powered subs. That includes 10 Block VI Virginia-class attack vessels, according to published reports. “Blocks” refer to the model of Virginia-class submarine. Block VI is the latest generation.

No space in Kitsap

General Dynamics Electric Boat searched in Kitsap County for room to expand and meet this new demand. Its Pacific Regional Operations location near the Bremerton National Airport already employs about 100 people. But lack of inventory in the county hampered the hunt for suitable industrial and warehouse space.

“Kitsap County has experienced an unhealthy low vacancy rate below 5% since 2015 and below 2% since the end of 2016,” according to a report on industrial land, buildings and infrastructure published by the Kitsap Economic Development Alliance last April.

According to the report, the U.S. Navy (not including contractors such as General Dynamics) has articulated a need for approximately 282,000 square feet of building area, including warehouse and heavy and light industrial space, within 40 driving miles of the Puget Sound Naval Shipyard in Bremerton. The report said that the Navy needs the space soon, with leases renewable for up to 10 years.

“Given the extremely limited supply of existing industrial buildings currently available, it will be very challenging for Kitsap to meet this demand in the near term,” it concluded.

Latitude 47 Commerce Center in Gig Harbor is only about 20 miles from Bremerton. It had the right type and size of space when General Dynamics came looking last year.

General Dynamics rented 36,000 square feet of office space in the Latitude 47 complex in Gig Harbor. Photo by Vince Dice

Operational early next year

The company spent much of 2025 making tenant improvements at Latitude 47. Operations will begin there in the first quarter of 2026, Lee said.

The components worked on at the Gig Harbor facility “will be used in future submarines out of Groton and Newport News,” in Virginia, Lee said. She declined to comment on the nature of the components.

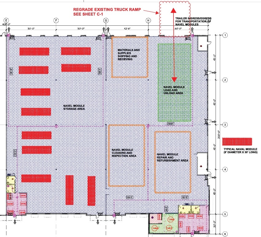
Plans on file with the city show a small part of General Dynamics’ almost-37,000 square foot workplace taken up by offices, restrooms and a break room. But most of the facility is to be used for storing, repairing, refurbishing, cleaning and inspecting “naval modules,” according to the plans. These are described as being 30 feet long and eight feet in diameter.

Plans filed with the city of Gig Harbor for the General Dynamics Electric Boats space in the Latitude 47 center.